产品分类

联系我们

启东市昶鑫环保设备有限公司
地址:启东市经济开发区凯旋路338号
电话:0513-83223318
传真:0513-83252058
联系人:姚亚鑫
手机:13606286423
http://www.jscxhb.com
E-mail:chxssb@126.com

 

JD-QX、JD-QH型高压离心通风机消声器

一、结构型式
  本系列消声器为一种阻抗复合式消声器,其阻性段采用列管吸声通道,抗性段采用了多室抗性腔直管通道及十字形吸声片形式,从而保证了在较宽频带范围内具有足够的消声量。

二、适用范围
  主要用于各种系列(8-18型、9-27型)的高压离心通风机,用于降低进、出风口等空气动力性噪声。
  JD-QX型两端均为法兰联接可串接于管道中。
  JD-QH型一端为防雨帽,仅供设置在室外管道末端和封闭式机房进风口选用。

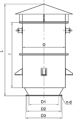
三、规格、性能、外形尺寸

适用流量(m3/h)
外形尺寸外径D
法 兰 尺 寸(mm)
气流度速(m/s)
阻力损失(Pa)
外径D
有效长度
安装长度L
内径D1
螺孔中心圆直径D2
外径D3
联接孔
QX
QH
孔径d
孔数n
JD-QX-1 JD-QH-1
2200
450
1300
1550
1650
230
318
350
12
6
13.4
170
JD-QX-2 JD-QH-2
5000
600
1300
1550
1650
340
426
450
14
8
13.5
215
JD-QX-3 JD-QH-3
8000
730
1300
1600
1700
420
506
540
14
12
16
235
JD-QX-4 JD-QH-4
12000
790
1400
1800
1800
500
606
640
14
12
17
260
JD-QX-5 JD-QH-5
15000
900
1540
1890
2020
580
686
720
14
12
17
260
JD-QX-6 JD-QH-6
20000
950
1640
1990
2140
650
806
790
14
12
17
260
JD-QX-7 JD-QH-7
25000
1000
1690
2040
2240
700
816
840
14
12
18
300
JD-QX-8 JD-QH-8
30000
1100
1750
2150
2400
780
886
920
14
16
17.5
280
JD-QX-9 JD-QH-9
35000
1180
1800
2200
2500
840
945
980
14
16
17.6
280
JD-QX-10 JD-QH-10
40000
1330
1880
2250
2600
900
1006
1040
14
24
17.5
280
JD-QX-11 JD-QH-11
50000
1420
1990
2250
2650
1000
1106
1140
14
24
17.7
280
JD-QX-12 JD-QH-12
80000
1780
2900
3200
3600
1300
1420
1480
30
30
16.7
300
 
     
     
JD-QX型高压离心通风机消声器             JD-QH型高压离心通风机消声器  
 



 

 

地址:启东市经济开发区凯旋路338号
电话:0513-83223318 传真:0513-83252058
手机:13606286423 联系人:姚亚鑫
http://www.jscxhb.com
E-mail:chxssb@126.com